Conception et Idées : Plan de serre surface 70m2 application gratuite
Envie de transformer votre extérieur ? Découvrez nos meilleures idées pour Plan de serre surface 70m2 application gratuite. Que vous ayez un grand terrain, un potager ou un petit balcon, ces plans et inspirations vous aideront à créer un espace vert unique et apaisant.

Source : Plan de serre de jardin : pour un jardinage réussi

Source : Plan serre de jardin surélevée 2,40 m

Source : Plan pour construire une serre soi-même

Source : Plans de serre 8 x 12 avec plans de jardin surélevés, guide de

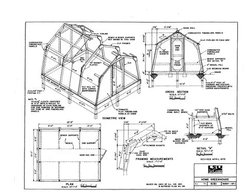
Source : Plans de serre- PDF-plan de serre en bois-Plans de construction

Source : Plan serre de jardin surélevée 60cm

Source : Comment bien aménager une serre de jardin ? | Serres Val de Loire

Source : Plan serre de jardin surélevée 2,40 m

Source : Les 12 meilleures images de Plans De Serre | Plans de serre, Serre

Source : 7 idées de Plans de serre | plans de serre, serre jardin, serre bricolage

Source : Plans de serre 8 x 12 avec plans de jardin surélevés, guide de

Source : Plan serre de jardin surélevée 60cm
Nous espérons que ces modèles de Plan de serre surface 70m2 application gratuite vous donneront la main verte. N'hésitez pas à sauvegarder ces idées pour vos futurs projets d'aménagement !